Comercial Garrofa SCCL
La Cooperativa Comercial Garrofa disposa d’una nau industrial amb un total de 1.225 metres quadrats construïts, on es realitza part de l’emmagatzematge i el procés de la garrofa, a més a més d’un pati exterior pavimentat i vallat, on es realitza en bona part l’emmagatzematge de la garrofa en les èpoques de màxim estocatge, mentre que la resta de superfície és de maniobra per a càrrega i descàrrega del fruit.
*Sector agroalimentari, garrofa.
La finalitat de les actuacions d’Asolgroup Enginyers al 2019 va ser la substitució de tots els elements de coberta, incloses canals de les aigües pluvials realitzats amb fibrociment amb amiant i que comportarà diverses millores destacables.
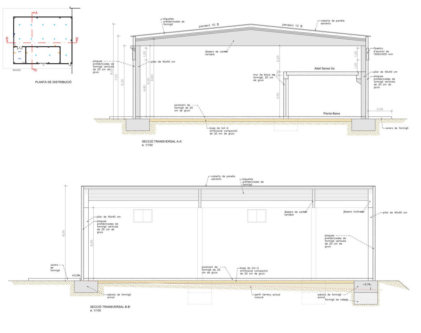
L’any 2024 Asolgroup ha iniciat el projecte de construcció d’una nova nau industrial per a Comercial Garrofa de 500m2, per al processat i emmagatzematge de garrofa a Mont-Roig del Camp.






