Carlos Andreu Ramaders, SCPO
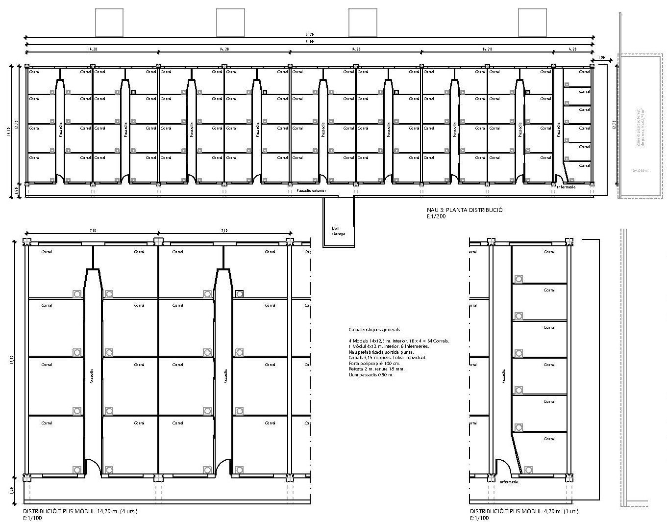
Al 2024 vam començar el projecte executiu per a la construcció de dues naus ramaderes, per l’ampliació de l’explotació porcina d’engreix de l’empresa Carlos Andreu Ramaders SCP, a Bràfim, Al Camp.
Un cop ampliada l’explotació estarà formada per quatre naus d’engreix, una bassa de purins, i tres dipòsits d’emmagatzematge de purins externs soterrats.
Aquestes instal.lacions acolliran porcs d’engreix de més de 20kg amb un nombre de places superior a 2500 animals.












